Mobilní dům MODUL 6 A - Šikmá střecha

MOB6A MOB6Ab MOBPUD (11) mob6 viz3d (11)

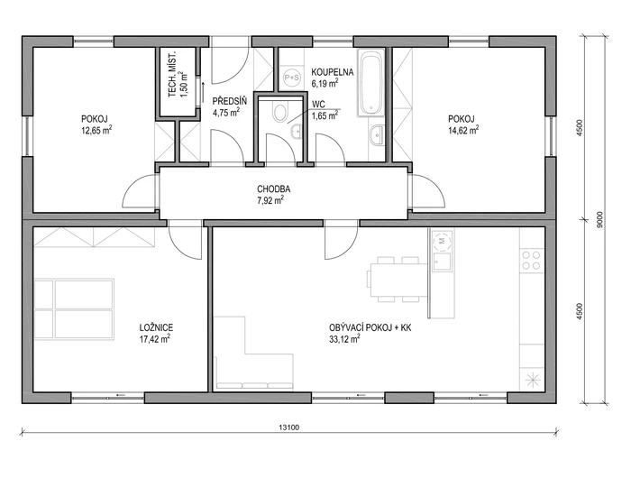
U MODUL 6 se místem opravdu nešetří a tato velkoryse pojatá stavba klade důraz na prostor a praktické řešení. Okouzlí svými velkými prosvětlenými místnostmi s množstvím oken, či oddělenou toaletou. Nechybí zde ani technická místnost nebo prostorná koupelna. To vše pak tvoří komfortní bydlení zahalené do luxusního hávu, které uspokojí i ty nejnáročnější zákazníky.

Vybírat můžete ze tří variant a příplatkové výbavy. Přehled vybavenosti jednotlivých provedení naleznete ZDE.

 

Technické informace

Zastavěná plocha: 117,9 m²
Dispozice: 4+kk

 

TECHNICKÝ VÝKRES

Cena od 1 532 000 Kč bez DPH

Standardní nabídka obsahuje:

  • konstrukci ze systému SIP včetně montáže a likvidace odpadu; stavba je řešena jako horní stavba na zemní vruty či betonové patky

  • okna WINDEK (trojsklo, antracit) a vchodové dveře s výplní Perito (součástí dodávky je pouze stavební vložka)

  • střešní krytinu Satjam Rapid Click, barva antracit, vč. příslušenství a okapového systému

  • veškeré elektroinstalační a instalatérské rozvody včetně kompletací

  • stěny opláštěné SDK a opatřené základní bílou výmalbou; tmelení Q2

  • bojler Ariston Evo 100; koupelna: rozvody, předstěny a hydroizolace, obklad, dlažba, vana

  • zařizovací předměty (viz rozpis SIKO): WC Geberit, nezámrzný ventil, vana do koupelny (cena 10 000 Kč)

  • vytápění el. topnými fóliemi Fenix s Wi-Fi termostatem; koupelna (dlažba): el. rohož + žebřík

  • zateplení EPS 70 F 100 mm, armovací stěrka, probarvená omítka Weber silikon 1,5 mm

  • podlahová krytina: plovoucí laminátová podlaha 8 mm; interiérové dveře SIKO / stolařství Zapalač / vlastní výběr

  • součástí cenové nabídky je rekuperační set a příprava rozvodů na tepelné čerpadlo vzduch/vzduch s možností chlazení

 

Dále je možné objednat:

  • kuchyňská linka

  • vestavěná skříň

  • hromosvod

  • tepelné čerpadlo

 

Rádi vám zpracujeme individuální cenovou nabídku, která bude vycházet z vašich přání a požadavků.

Zpracovávám...

VOMOSTAV s.r.o.

Za humny 996/5, 779 00 Olomouc

IČO: 29452384
DIČ: CZ29452384
Spisová značka C 54416 vedená u Krajského soudu v Ostravě

Bankovní spojení: 2400310875/2010

TENTO WEB POUŽÍVÁ COOKIES
Pokud kliknete na „Přijmout vše“, poskytnete tím souhlas k jejich ukládání na vašem zařízení, což pomáhá s navigací na stránce, s analýzou využití dat a s našimi marketingovými snahami.
Více informací
  1. Jsou nezbytné k tomu, aby web fungoval, takže není možné je vypnout. Většinou jsou nastavené jako odezva na akce, které jste provedli, jako je požadavek služeb týkajících se bezpečnostních nastavení, přihlašování, vyplňování formulářů atp. Prohlížeč můžete nastavit tak, aby blokoval soubory cookie nebo o nich posílal upozornění. Mějte na paměti, že některé stránky bez těchto souborů nebudou fungovat. Tyto soubory cookie neukládají žádné osobní identifikovatelné informace.
  2. Pomáhají sledovat počet návštěvníků a také z jakého zdroje provoz pochází, což nám umožňuje zlepšovat výkon stránky. Můžeme s nimi určovat, které stránky jsou nejoblíbenější a které nejsou oblíbené, a také sledovat, jakým způsobem se návštěvníci na webu pohybují. Všechny informace, které soubory cookie shromažďují, jsou souhrnné a anonymní. Pokud soubory cookie nepovolíte, nebudeme vědět, kdy jste navštívili naši stránku.
  3. Tyto soubory cookie mohou na naší stránce nastavovat partneři z reklamy. Mohou je používat na vytváření profilů o vašich zájmech a podle nich vám zobrazovat reklamy i na jiných stránkách. Neukládají ale vaše osobní informace přímo, nýbrž přes jedinečné identifikátory prohlížeče a internetového zařízení. Pokud je nepovolíte, bude se vám zobrazovat na stránkách méně cílená propagace.

Svůj souhlas můžete kdykoliv změnit nebo odvolat kliknutím na odkaz Cookies v zápatí webu.